Selected Projects &
Work Samples

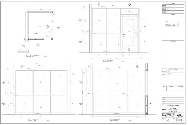
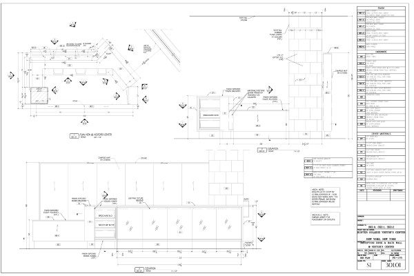
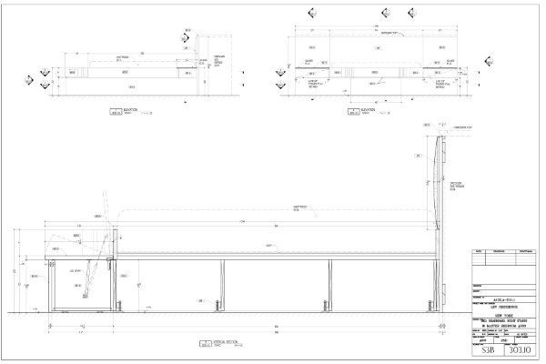
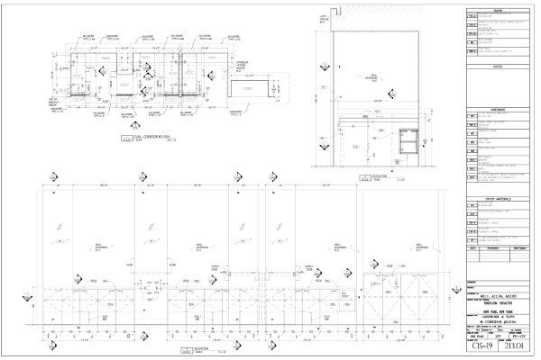
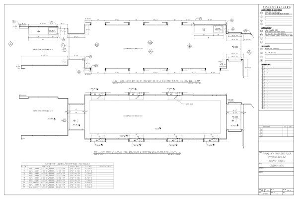
Our portfolio highlights a range of architectural woodwork and cabinetry projects completed for clients across North America. Each project reflects our commitment to accuracy, constructability, and adherence to industry standards.

Mirrored bar area with a mahogany surround
Projects

Samples of
Our Work

From detailed shop drawings to complex engineered solutions, these samples demonstrate how we support millwork shops and project teams with clear, coordinated documentation. In many cases, our work serves as a direct extension of our clients’ in-house engineering and drafting departments.

Explore the projects below to see our approach to precision, consistency, and dependable execution across a wide variety of project types and scopes.

  • Abinbev CAD drawing thumbnail
    Commercial

    Abinbev

    View Project Gallery
  • Anvar House CAD drawing thumbnail
    Residential

    Anvar House

    View Project Gallery
  • Cribbs Residence CAD drawing thumbnail
    Residential

    Cribbs Residence

    View Project Gallery
  • Del Frisco's Grill CAD drawing thumbnail
    Retail

    Del Frisco’s Grill

    View Project Gallery
  • Dior CAD drawing thumbnail
    Retail

    Dior

    View Project Gallery
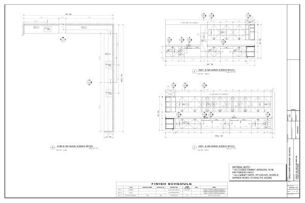
  • Discovery Magnet School CAD drawing thumbnail
    Institutional

    Discovery Magnet School

    View Project Gallery
  • Emblem Health CAD drawing thumbnail
    Institutional

    Emblem Health

    View Project Gallery
  • Gant Flagship CAD drawing thumbnail
    Retail

    Gant Flagship

    View Project Gallery
  • Goldman Sachs CAD drawing thumbnail
    Commercial

    Goldman Sachs

    View Project Gallery
  • Hunter College CAD drawing thumbnail
    Institutional

    Hunter College

    View Project Gallery
  • JP Morgan Chase CAD drawing thumbnail
    Commercial

    JP Morgan Chase

    View Project Gallery
  • Lev Residence CAD drawing thumbnail
    Residential

    Lev Residence

    View Project Gallery
  • The Kensington CAD drawing thumbnail
    Commercial

    The Kensington

    View Project Gallery
  • Weill Cornell Medical College CAD drawing thumbnail
    Institutional

    Weill Cornell Medical College

    View Project Gallery
Contact

Let’s Talk About
Your Project

Have a project in mind or need engineered shop drawings for architectural woodwork? We’re ready to discuss your scope, timelines, and requirements—and provide clear, competitive pricing.